微墅重構,讓愛駐進家里 | 273㎡ 藝墅家
小區名稱 / 藝墅家
戶型面積 / 273m2
裝修風格 / 現代輕奢
設 計 師 / 于俊
項目經理 / 江倫
裝修公司 / 博藝裝飾
實景攝影 / Beny
每個人的心中都有一幅關于家的藍圖,有寬敞的空間,有舒適的桌椅,有溫馨的燈光,空氣中還要彌漫著飯菜的香味……家,一定是讓你舒適的地方。
設計師用極簡的手法解構空間,重構后空間讓生活的動線更完美,讓空間的功能更大程度的釋放。
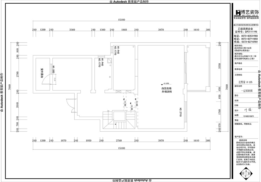
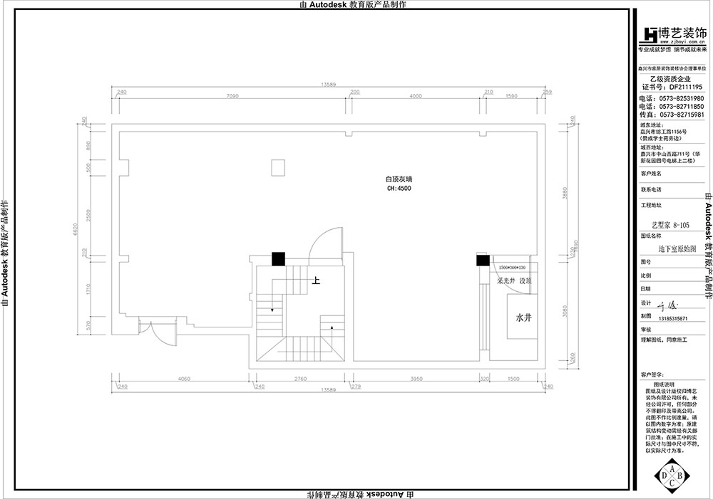
> 地下室原始圖紙
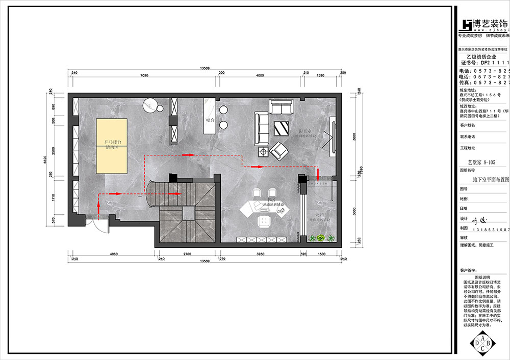
> 地下室平面圖紙

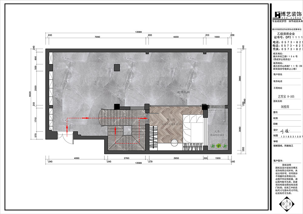
> 地下室閣樓平面圖紙
地下室區域為整個房子的休閑娛樂區,設計師改變了原來樓梯的朝向,使得地下室的動線更為獨立,互不影響;同時利用五米的層高優勢,增加了一個客房,既增加了儲物收納又可做親朋來訪時的休息室。
摒棄繁復的設計,選擇黑白灰的干練配置,在高挑的空間中,黑色低調卻不容忽視的氣場,不經意的撩撥著所有人的眼球。
音箱、話筒還有特意配置的水吧臺,瞬間點燃氣氛,嗨翻全場;累了可以安靜下來看會書,寫會字…休閑模式隨意切換。
> 一樓原始圖紙
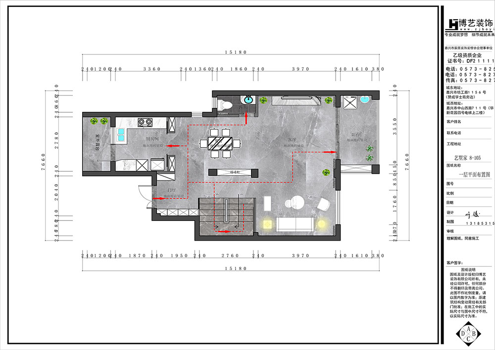
> 一樓平面圖紙
一樓主要是生活區域,包括廚房、客餐廳等。設計師利用北面陽臺的區域,把廚房做后移,整個空間就形成了現在的南北通透的設計,痛風性更好,同時自然光也能更多的進入空間。
陽光鋪灑進來,明明暗暗,為空間帶來光明。用線條勾勒出的空間格調,延展的層次感,營造出優雅的美學感官。
開放的餐廳,飯菜的香味飄得更遠,牽引你過來品嘗家的味道,參與愛的交流。
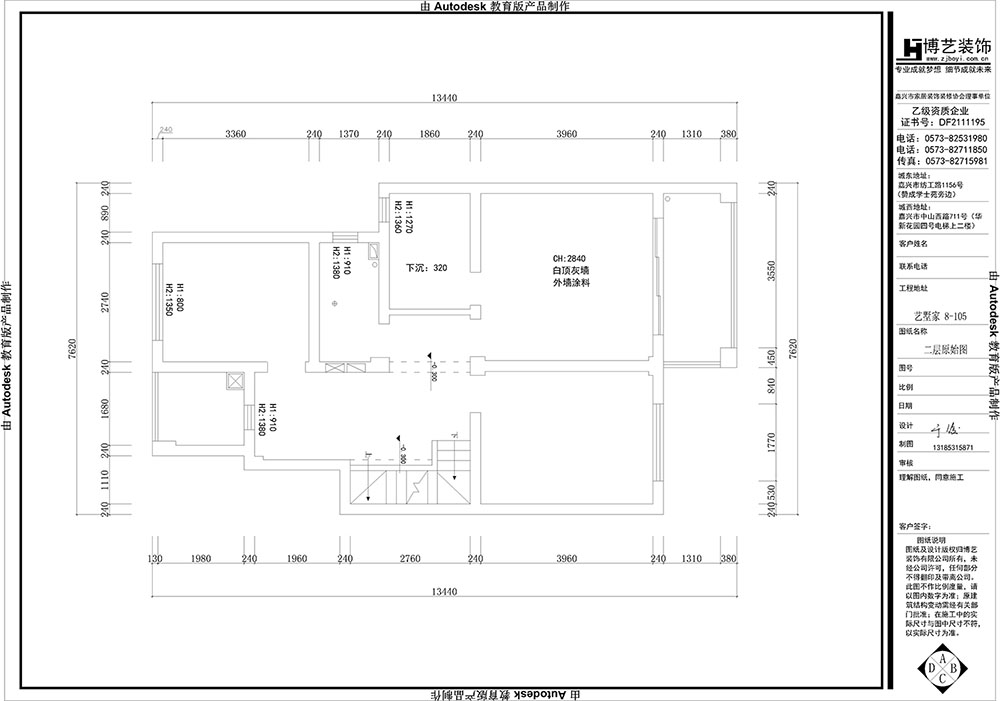
> 二樓原始圖紙
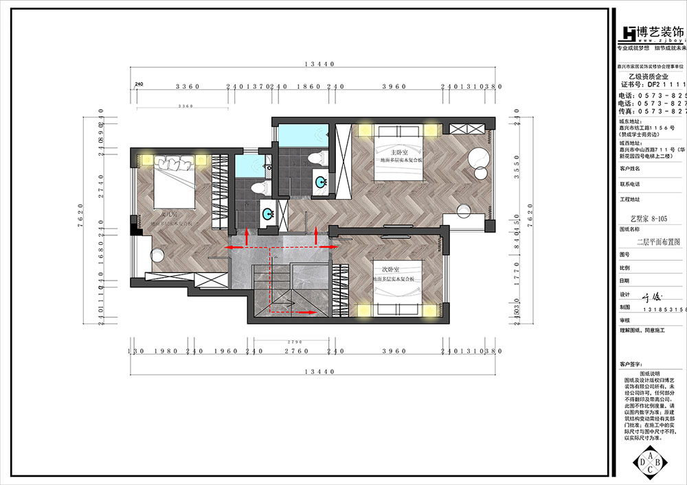
> 二樓平面圖紙
二樓主要是業主的休息區域,臥室都在這一層。把北面的儲藏室與房間打通,作為女兒學習與休息的地方,外衛做干濕分離,提高空間的使用率。
粉白粉白的布置,輕輕柔柔,造型獨特的粉色星星床,輕撫著一個又一個甜蜜而美好的夢鄉。
低飽和的霧霾藍,寧靜自然的大自然色,使人感到平靜,安撫著男孩子那天生的好動。
▼ 本案設計師
于 俊
博藝首席設計師
設計理念 / 設計源于生活,融與生活。
從業時間 / 13年
代表案例 / 羅馬都市、巴黎都市、鉑金府邸、晴灣、世貿花園、寶格麗公館、江南潤園、藝墅家、中糧一號院、信達香格里、香緹御峰…








邀約量房:
微信直接回復:地址+面積+姓名+手機號
或咨詢電話/微信:13372313151 博藝裝飾






