【博藝實景】我們一起安放一桌一椅 收容明媚也收納歡喜
發布時間:2020/07/20來源:博藝裝飾編輯:BOYI
所在城市:嘉興
項目名稱:紫園尚宸
設計風格: 現代簡約
房屋面積:170㎡
項目設計:博藝裝飾工程有限公司
主案設計:陸敏锫
彩屏制圖:吳超豪
實景攝影:Beny
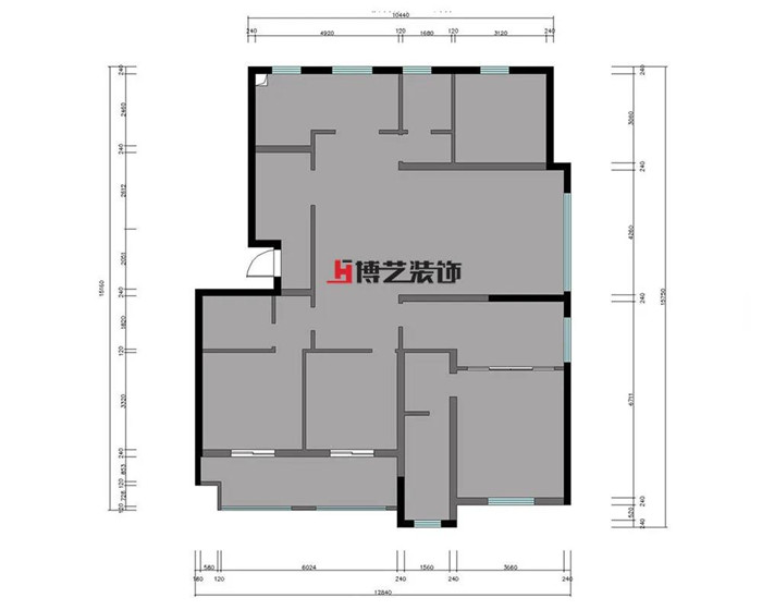
原始戶型圖
遇見業主一家,仿佛遇見了幸福的模樣。本案業主是一對非常有學識的年輕夫妻,女主人開朗大方,男主人溫文爾雅,小主人機靈聰慧。在設計上,他們希望著重考慮好儲物空間,夫妻互動空間,孩子的成長空間等。根據業主一家的要求,設計師利用房屋本身的功能區塊以及空間結構,按照就近原則,盡可能的增加儲物空間。而原始戶型的房門結構不是很合理,從而影響了整個客廳空間的視覺效果,設計師通過做了一扇移門巧妙地化解了墻面背景造型以及達到客廳整體空間效果。
嘴角的弧度,耳際的淺笑,都是幸福的印證。等著初夏的晨光熹微,等著初夏的微風拂面,讓我們輕柔的拉開窗簾,給初夏一個進口,晨光日暮,凈收眼底,快節奏的生活把我們帶離軌道,好在還有家來治愈心靈。

餐廳
生活是熱熱鬧鬧的菜市,是煙火繚繞的廚房,因為煙火氣息最是滋養人,熬一碗熱湯暖心暖胃,來一份果蔬點綴生活,在一鹽一糖的取舍中,既調和了菜肴,也中和了人生的酸甜苦辣……

主臥
主臥以套房的形式精心打造了睡眠區,獨立衛生間,辦公區,衣帽間,既保證了主人房的私密感,又體現了主人對高品質生活的需求。原木色的穿插讓空間多了一份柔和的氣息,設計師通過選用材質,紋理,色彩,讓空間之間進行對話……
書房
讀書是最好的家風,書架是最好的不動產,習慣了行色匆匆,希望有個地方,可以泡上一壺茶,捧上一本書,慢慢消磨時光……

兒童房
我們深知生活環境對于培養孩子的秩序性,自律性的重要性,所以我們著重在兒童房打造了睡眠區,學習區和儲物區。而對于男孩子來說,太空遨游是每個男孩子的夢想,而大多數的創造力都來自孩子的好奇心和冒險精神,所以設計師選用了遨游太空的壁畫,讓冒險精神在孩子心理扎根,讓孩子從小就萌發大膽嘗試和探索的勇氣。

老人房
藍色是溫柔的顏色,我們把它獻給最愛的爸媽,讓這溫暖輕盈的色彩如湛藍的海水般圍繞在旁。

多功能房
一半原木,一半素白,擁有一個多功能房,孩子就有了活動的空間,原木色和白色是本案的主色調,沿用到多功能房,木質的多功能房使得閱讀時光更加淳樸自然,而一抹綠色穿插其中,增加了空間的靈動,也增加了書房的氣質。
陽臺
除了洗洗曬曬,陽臺也要高顏值,木板磚和花磚的俏皮組合體現了陽臺上的小心機。
本案設計師介紹

陸敏锫
浙江農林大學
博藝設計總監
設計理念:生活可以融入設計,設計可以主導生活
工作時間:11年
所獲榮譽:
國家注冊室內工程師
2009年第八屆浙江省大學生多媒體作品設計競賽三等獎
浙江第四屆大學生校園生活原創藝術作品大賽獲得二等獎
博藝裝飾金牌設計師
項目名稱:紫園尚宸
設計風格: 現代簡約
房屋面積:170㎡
項目設計:博藝裝飾工程有限公司
主案設計:陸敏锫
彩屏制圖:吳超豪
實景攝影:Beny
項目主材:木飾面板、不銹鋼、硬包、墻紙、壁爐、菲林軟裝、巨卓家具、榮爵整木、中躍燈具
原始戶型圖
遇見業主一家,仿佛遇見了幸福的模樣。本案業主是一對非常有學識的年輕夫妻,女主人開朗大方,男主人溫文爾雅,小主人機靈聰慧。在設計上,他們希望著重考慮好儲物空間,夫妻互動空間,孩子的成長空間等。根據業主一家的要求,設計師利用房屋本身的功能區塊以及空間結構,按照就近原則,盡可能的增加儲物空間。而原始戶型的房門結構不是很合理,從而影響了整個客廳空間的視覺效果,設計師通過做了一扇移門巧妙地化解了墻面背景造型以及達到客廳整體空間效果。
客廳
嘴角的弧度,耳際的淺笑,都是幸福的印證。等著初夏的晨光熹微,等著初夏的微風拂面,讓我們輕柔的拉開窗簾,給初夏一個進口,晨光日暮,凈收眼底,快節奏的生活把我們帶離軌道,好在還有家來治愈心靈。

餐廳
生活是熱熱鬧鬧的菜市,是煙火繚繞的廚房,因為煙火氣息最是滋養人,熬一碗熱湯暖心暖胃,來一份果蔬點綴生活,在一鹽一糖的取舍中,既調和了菜肴,也中和了人生的酸甜苦辣……

主臥
主臥以套房的形式精心打造了睡眠區,獨立衛生間,辦公區,衣帽間,既保證了主人房的私密感,又體現了主人對高品質生活的需求。原木色的穿插讓空間多了一份柔和的氣息,設計師通過選用材質,紋理,色彩,讓空間之間進行對話……
書房
讀書是最好的家風,書架是最好的不動產,習慣了行色匆匆,希望有個地方,可以泡上一壺茶,捧上一本書,慢慢消磨時光……

兒童房
我們深知生活環境對于培養孩子的秩序性,自律性的重要性,所以我們著重在兒童房打造了睡眠區,學習區和儲物區。而對于男孩子來說,太空遨游是每個男孩子的夢想,而大多數的創造力都來自孩子的好奇心和冒險精神,所以設計師選用了遨游太空的壁畫,讓冒險精神在孩子心理扎根,讓孩子從小就萌發大膽嘗試和探索的勇氣。

老人房
藍色是溫柔的顏色,我們把它獻給最愛的爸媽,讓這溫暖輕盈的色彩如湛藍的海水般圍繞在旁。

多功能房
一半原木,一半素白,擁有一個多功能房,孩子就有了活動的空間,原木色和白色是本案的主色調,沿用到多功能房,木質的多功能房使得閱讀時光更加淳樸自然,而一抹綠色穿插其中,增加了空間的靈動,也增加了書房的氣質。
陽臺
除了洗洗曬曬,陽臺也要高顏值,木板磚和花磚的俏皮組合體現了陽臺上的小心機。
本案設計師介紹

陸敏锫
浙江農林大學
博藝設計總監
設計理念:生活可以融入設計,設計可以主導生活
工作時間:11年
所獲榮譽:
國家注冊室內工程師
2009年第八屆浙江省大學生多媒體作品設計競賽三等獎
浙江第四屆大學生校園生活原創藝術作品大賽獲得二等獎
博藝裝飾金牌設計師
走過春與秋
跨過山與河
從桃花灼灼到生死契闊
在紫園尚辰
我們的家里
安放一桌一椅
打磨出紋理
收容所有的明媚與歡喜






