【博藝實景】與時光共舞,讓生活自然純粹
[所在城市]:嘉興
[項目名稱]:洪合自建房
[設計風格]:美式混搭
[房屋面積]:148m2
[項目設計]:博藝裝飾工程有限公司
[主案設計]:王顧君
[實景攝影]:Beny

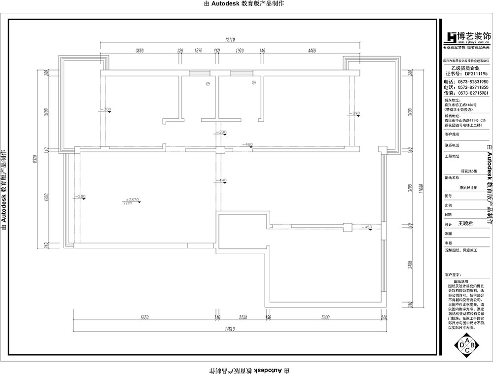
原始結構圖

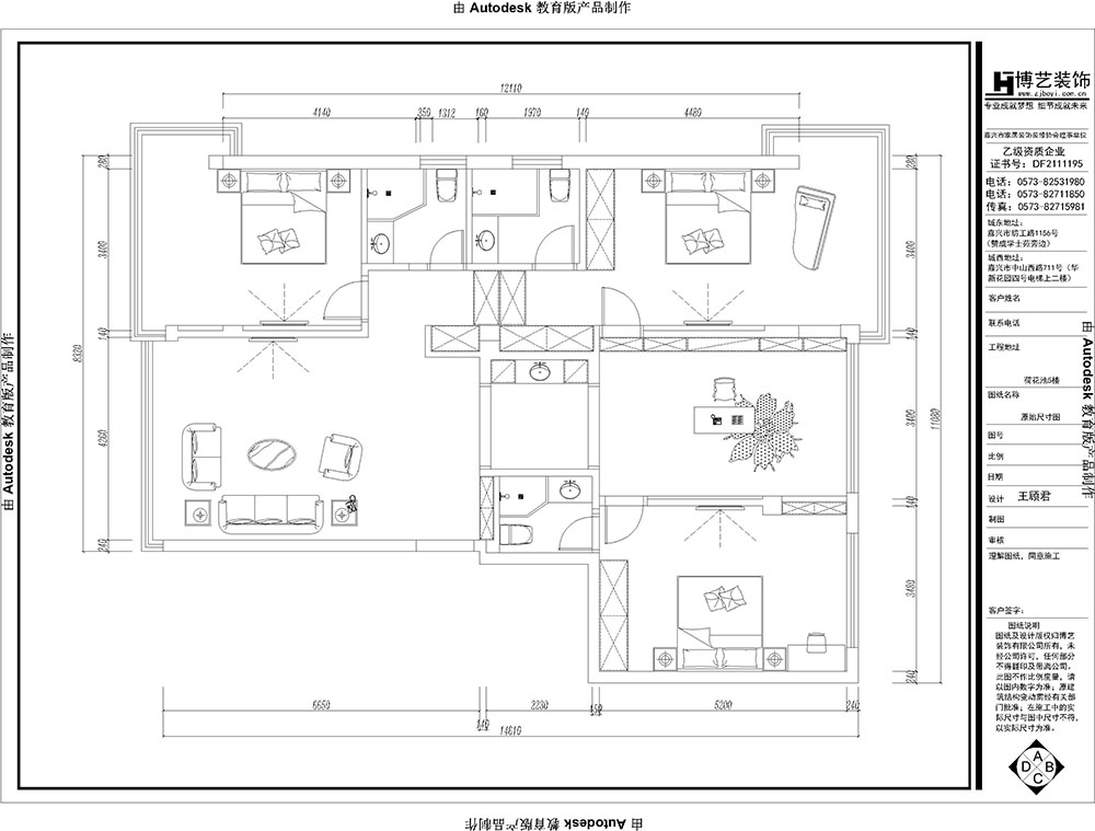
平面布置圖
設計師寄語
在空間規劃上因為是自建房所以整體都比較合理,空間也比較充足,而廚房的獨立存在,使得樓層的生活用水顯得比較不方便。于是我們在動線上規劃一個水吧的位置,滿足日常生活所需;在色彩上,我們選用目前比較流行的“中性”奶咖色,營造出一個雅致又極度舒緩的空間,再點綴以濃烈的紅色,橘色,仿佛夜空中閃亮的星,那么美好,那么耀眼。
實景拍攝客廳



書房


過道



臥室



衛生間

本案設計師
王顧君
博藝首席設計師
設計理念:勤于溝通 重于大局 微于細節 貴于專業
工作時間:7年
代表案例:玖熙花苑、莫奈花園、信達香格里拉、英倫都市、御品公館、新中國際...
邀約量房:
微信直接回復:地址+面積+姓名+手機號
或咨詢電話/微信:13372313151 博藝裝飾






