【博藝新作】伊頓公館|246m2高顏值+強收納!輕松承載雙走入式衣帽間!
—— 海寧·伊頓公館
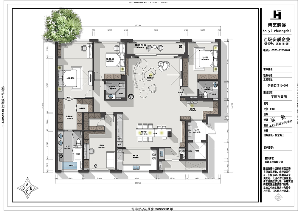
小區名稱—伊頓公館
戶型面積—246m2
裝修風格—現代簡約
設計 師—張曼
項目經理—李科明
裝修公司—博藝裝飾
實景攝影—Beny
慢煮生活輕煮茶 這種“松弛感”剛剛好!
——
1. 整個戶型格局方正,在設計的時候保留了四房功能。
2. 整個房子設計最大的亮點在儲物功能非常強大,從進門玄關強大式的收納系統,到每個空間配備單獨收納空間,再到單獨設計雙走入式衣帽間
3. 保留南陽臺功能,整個朝南落地窗,讓這里成為絕佳的觀景陽臺,我們稱之為“攬月陽臺”,清風,晨露,活力開啟;月光,星辰,浪漫無比。
4. 主臥和陽臺打通,加上衣帽間,衛浴間,形成大套間格局。
5. 北陽臺拓展進廚房
▎ 客 廳
全屋以米色色調為主,仿佛落日余暉,打開整個空間的格調??筒蛷d空間是一家人的互動中心,也是親朋好友聚會的社交中心,在設計的時候我們盡可能設計得寬敞而又舒適。
沙發的選擇由米白到米黃到杏黃分層過渡,同色系之間繁而不亂,跳脫而又和諧。皮質到絨布,各種材質的碰撞,硬朗中包裹著柔和。
電視背景墻與沙發背景遙相呼應,用隱形門的設計讓背景獨立完整。在這個忙碌的快節奏生活里,選一個落日黃昏,攜一縷清風入茶,會兩三好友,也是人生一大樂事。
大理石的導臺和木質的餐桌,兩種不同色系和不同材質的碰撞,加上網紅昌迪加爾椅,讓整個餐廳蒙上濃濃的中古氣息。
西廚又充當了餐邊柜的功能,原木和白色的加持,讓色彩和風格呼應而又統一。
▎主 臥
主臥是延續了客餐廳的色系,使得整個家居風格渾然一體。打通了陽臺,迎接我們的是明朗的陽光和開闊的視野,同時大面積的采光,為房間帶來怡人的自然光影,主臥用自己傾聽者的姿態包容主人的喜怒哀樂,讓主人汲取滿滿能量。
雙臺盆的主衛設計,讓夫妻兩個洗漱都可以同步,面對面的情感互動,才是幸福生活的溫暖本意。
張曼
博藝海寧設計部經理
從業時間:12年
設計理念:每個人設計美的定義與理解都是不同的,尊重且傾聽你所有的想法,哪怕是場沖突,也會努力讓結局做到更好。
個人榮譽:2012年嘉興室內裝飾行業十佳設計師
2014年嘉興年度設計師優秀作品
2018年嘉興首屆設計師精英賽銀獎
2019年嘉興設計力量TOP 30
2022年君望設計大賽十佳設計師
代表案例:伊頓公館,百合,百悅府,工聯紅郡,桃花源,萬城印象,時代悅府,華鴻萬墅,怡景灣,自建房…

邀約量房:
微信直接回復:地址+面積+姓名+手機號
或咨詢電話/微信:13372313151 博藝裝飾